惠城区马安新厂房出售50年红本厂房1000平起售
- 信息编号:CF-23470
- 业务意向:出售
- 所在区域:惠阳区
- 建筑结构:其它
- 建筑面积:1000 m²
- 联 系 人:王经理
- 价 格:2000 元/平米
- 联系电话:400-8552-111
- 所在地址:广东-惠州-惠阳-镇隆
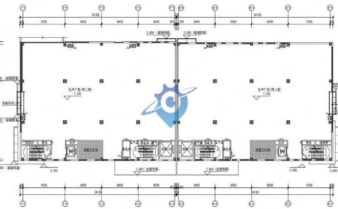
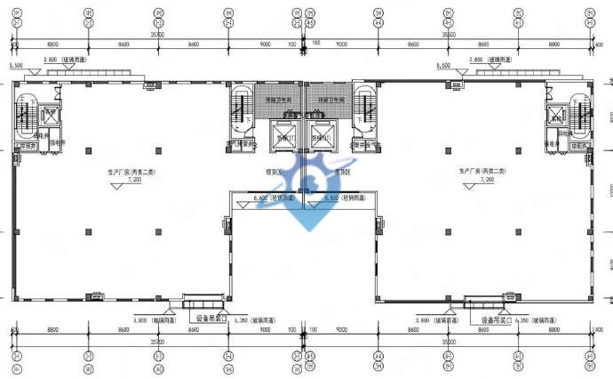
一、【项目概况】 项目亮点:1.8容积率,实心地面,按层分割产权,高标准厂房; 占地面积:总占地19.4万㎡,一期占地6.8万㎡; 建筑面积:总建面43.4万㎡,一期建面12.6万㎡; 产业定位:以电子信息产业为核心,聚集电子信息、智能制造、新能源、新材料产业; 土地性质:50年产权国土红本,M1工业用地,一层一证; 业态规划:规划由20栋总部独栋、2栋高层厂房、2栋生活配套组成; 付款方式:首付二成、按揭十年; 项目主干道横一路可通达江北核心区域,充分享受市区配套,距离惠大高速水口收费站3km路程,即可上惠大高速,通过接驳广龙高速、甬莞高速及沈海高速等,可快速通达深圳东莞工业核心区、实现与大湾区核心城市人流、物流和资金流的高效互通。













