惠阳镇隆新出大型产业园特价出售2600平配套齐全好招工无税收
- 信息编号:CF-21623
- 业务意向:出售
- 所在区域:惠阳区
- 建筑结构:砖混结构
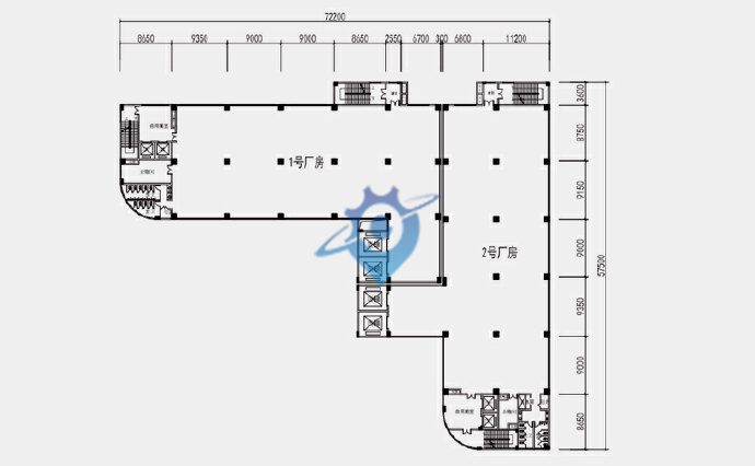
- 建筑面积:2600 m²
- 联 系 人:王经理
- 价 格:2800 元/平米
- 联系电话:400-8552-111
- 所在地址:广东-惠州-惠阳-镇隆
M1工业用地,国土50年产权,独立产权每层产权可分割。 【面积】 主力户型:1100平-1600平,可双拼可自由组合 【层高】 首层层高78m,标准层层高为5m 【价格】3500-6000元/㎡不等【货梯】配套客货梯,承重5T 【承重】高层底层承重3T/平、2-3楼为15T/平,四层及以上 为0.8T/平 项目区位:临深产业转移首选地 粤港澳大湾区战略规划确立了惠州“大湾区东部门户城市定位”。在深莞惠区域加速协同发展下,给惠州带来扩大开放、极力创新等效应。惠州正加快成为珠江东岸新增长极、粤港 澳大湾区高质量发展重要地区和国内一流城市的步伐! 项目毗邻深圳市,承接深圳东扩、产业转移优势,全面推动惠州进入湾区核心城市。全新机遇起航,与时代同频,铸就 湾区新城! 【交通】 *公路:长深高速、武深高速、广龙高速、广惠高速、甬莞高速、惠莞高速、G205国道(红线宽度为50米)、S357省道(红线宽度为50米)(高速路口:伯公坳收费站7分钟)*轨道:轨道交通纵横交错,惠深城际西线,镇隆范围内长度为75公里,沿205国道高架,设置镇隆站;惠州市轨道交通1号线,镇隆范围内长度为5公里,地下敷设,设置惠风 二路站。 *机场:惠州机场40公里深圳机场94公里广州白云机场160 公里 【定位】以电子信息为主导、及智能制造、LED光电、新能 源产业、智能家居、生物医药、其他新兴产业等 【产业配套】贝特瑞新材料、中京电子、德赛西威、亿纬锂能、TCL集团、信兴荣电业、艾瑞欣科技、源科机械、高德 机电、濠玮电子、赛腾能源、捷普绿点、至精精密【园区配套】园区配有食堂、宿舍、人才公寓、会议中心、 服务大厅等。 【生活配套】新世界购物广场、天益城、鑫月广场、天地和 购物广场 【学校医院】仲恺中学、镇隆中学、皇后学校、仲恺实验学校、黄洞小学、镇隆中心小学、陈江小学、甘陂小学、楼下小学、仲恺人民医院、惠州中心医院、中信医院、镇隆医院














